Anneks til sommerhus

Nyt anneks på Falster

Drømmer I om et nyt anneks til sommerhuset?

Hos Ringtved A/S bygger vi annekser og tager os af hele processen fra start til slut.
Vi bringer jeres idéer til livs, så tag endelig fat i os, hvis I drømmer om mere plads.

Nyt anneks til sommerhus på Falster

Nyt anneks til sommerhus på Falster

En kunde på Falster stod med et gammelt og udtjent anneks ved sit sommerhus, som var i så dårlig tilstand, at den bedste løsning var at rive det ned og bygge nyt.

Fra gammelt til nyt

Vi stod for hele nedrivningen og den efterfølgende bortskaffelse af materialerne fra det oprindelige anneks, så grunden var klar til at opføre det nye anneks til sommerhuset.

I tæt samarbejde med kunden designede vi et nyt anneks, som både funktionelt og æstetisk levede op til deres ønsker. Vi sørgede også for alle nødvendige byggetilladelser og ibrugtagningstilladelser, så det nye anneks står lovligt og er godkendt til beboelse.

Annekset matcher sommerhusets stil

Et vigtigt ønske fra kunden var, at anneksets udtryk skulle harmonere med sommerhusets arkitektur. Derfor valgte vi materialer og farver, der passer til hovedhuset, så det hele fremstår som en naturlig helhed.

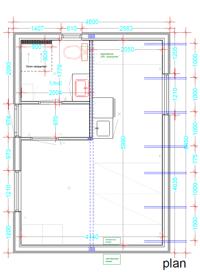
Indvendigt er annekset praktisk indrettet med entré, badeværelse, tekøkken og plads til både seng eller sofa – perfekt som gæstehus eller ekstra opholdsrum.

Se resultatet i videoen her på siden.

Drømmer I om mere plads i sommerhuset?

Et anneks eller en tilbygning er en oplagt løsning, hvis I ønsker mere plads i sommerhuset – uden at skulle købe nyt. Det giver jer fleksibilitet og mulighed for at indrette rummene præcis, som I vil.

Måske mangler I:

  • Ekstra sovepladser til familie og venner
  • Et roligt kontor til hjemmearbejde
  • Et hobbyrum, en bar eller en lille hjemmebiograf

Vi hjælper jer gerne med at finde den rigtige løsning.

Skal vi bygge jeres nye anneks?

Hos Ringtved har vi stor erfaring med at bygge tilbygninger og annekser til sommerhuse på Lolland, Falster og Sydsjælland. Vi tager os af hele processen fra start til slut.

Kontakt os i dag og lad os tage en uforpligtende snak om mulighederne.

FÅ ET TILBUD

Kontakt os for uforpligtende tilbud

Skal du renovere, bygge om eller bygge nyt? Vi udfører alle former for tømrerarbejde.

Har du et træarbejde, der kræver særlig ekspertise og omhu? Så har vi snedkeren, der kan ordne det.

Brug for en dygtig murer? Vi udfører murerarbejde i høj kvalitet på hele Lolland-Falster, Sydsjælland og Møn.

Få ordnet dit malerarbejde af en af vores professionelle malere. Vi maler både indendørs og udendørs.

Har du spørgsmål ?